171 viviendas | Granada (Granada)

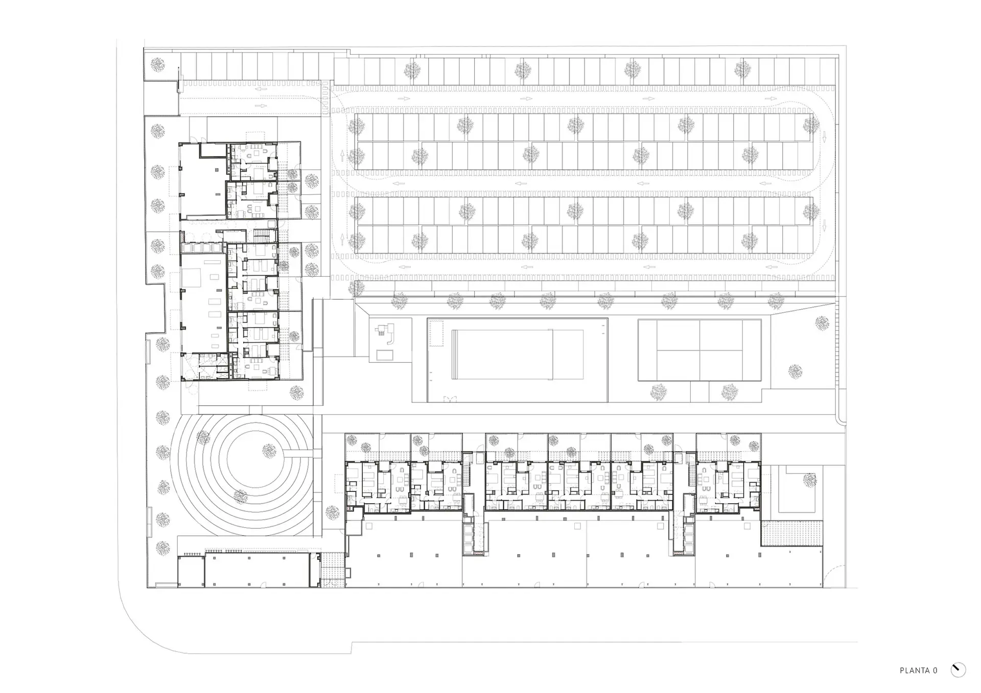
El proyecto arquitectónico en Granada, que consiste en 171 viviendas en régimen de alquiler distribuidas en dos bloques de ocho alturas, se destaca por su enfoque innovador y sostenible. 🏗️ El diseño de sus fachadas es una reinterpretación moderna de la arquitectura tradicional andalusí, utilizando juegos de luces y sombras para reducir la incidencia solar y mejorar el confort térmico. ☀️ Este enfoque no solo aporta un alto grado de singularidad al conjunto, sino que también contribuye a la eficiencia energética del edificio.

 

Nuestra aportación clave a esta obra ha sido el suministro de un pavimento prefabricado de hormigón para las zonas exteriores. 🛣️ Este pavimento, fabricado a medida para el proyecto, ha sido diseñado para complementar la estética de los edificios y sus amplias zonas comunes. Su durabilidad y resistencia lo hacen ideal para los aparcamientos y espacios de convivencia, como la piscina, la pista de pádel y las zonas ajardinadas. 🏊‍♂️

 

El proyecto se completa con una gran variedad de servicios y espacios comunitarios pensados para el bienestar de los residentes. Además de las áreas mencionadas, cuenta con gimnasio, sala de coworking y zona de juegos infantiles. 🌱 La integración de estas instalaciones con nuestro pavimento de hormigón prefabricado garantiza un entorno funcional y estéticamente coherente, ofreciendo una experiencia de vida de alta calidad para los futuros inquilinos. ✨

 

  • Arquitectos: MCEA Arquitectos
  • Localización: Avda. Federico García Lorca. Granada
  • Año: 2025
  • Uso: Residencial
  • Superficie construida: 16.910 m²
  • Superficie de la parcela: 10.253 m²
  • Promotor: GRUPO LAR + PRAEMIA REIMS
  • Certificación: BREEAM “Bueno”
  • Empresa constructora: DRAGADOS
  • Fotografía: David Frutos Fotografía de Arquitectura

Si te ha gustado el proyecto ¡Compártelo!

Proyectos relacionados