Infraestructuras | Arquetas
Infraestructuras » Arquetas
Descripción
Arquetas Motalbán y Rodríguez ofrece una amplia gama de arquetas fabricadas con materiales resistentes y de alta calidad, adaptadas a diferentes necesidades de infraestructura.
Sus modelos se organizan según dimensiones interiores en seis grupos: 30-40 cm, 40-50 cm, 50-60 cm, 60-70 cm, 80-90 cm y 100 cm, permitiendo una selección fácil y precisa. Cada arqueta garantiza durabilidad, seguridad y eficiencia en la canalización y drenaje de aguas.
Arquetas 30-40 cm
Arquetas 40-50 cm
Arquetas 50-60 cm
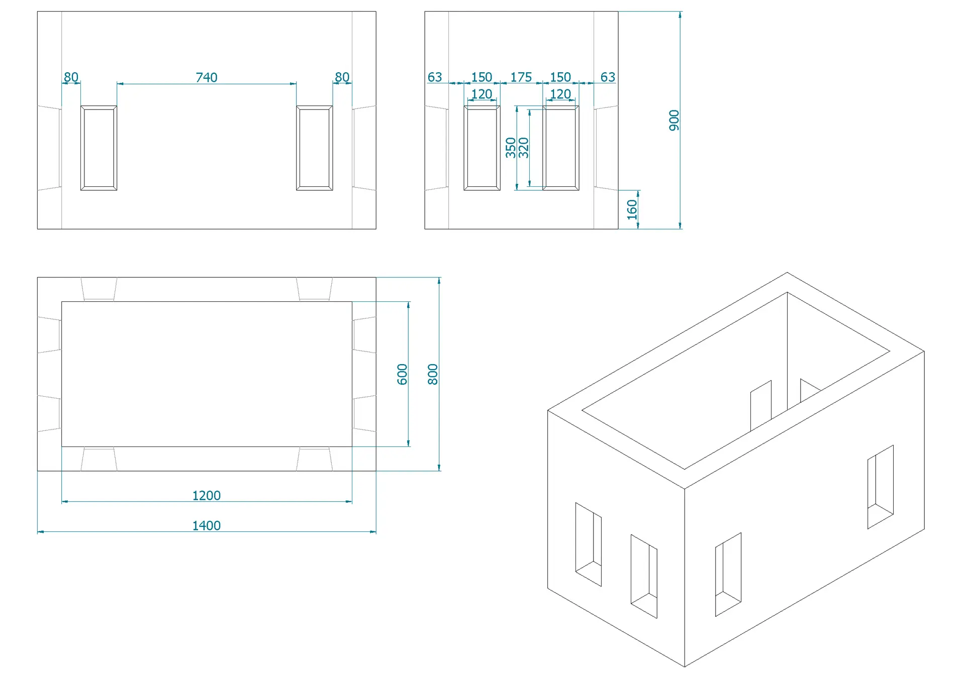
Arquetas 70-80 cm
Arquetas 80-90 cm
Características técnicas | Dimensiones
Modelo | Dimensiones interiores (mm) | Dimensiones exteriores (mm) | Peso (Kg) | Unidades palet | Dimensiones palet (mm) |
|---|---|---|---|---|---|
Tapa Telefónica tipo M | 411 x 411 x 60 | 470 x 470 x 70 | 37,85 | 30 | – |
Arqueta M Telefónica | 300 x 300 x 540 | 470 x 470 x 600 | 198,00 | 8 | 1.000 x 1.000 x 1.300 |
Arqueta Alumbrado sin fondo | 320 x 320 x 340 | 420 x 420 x 340 | 35,00 | 24 | 1.200 x 1.000 x 1.500 |
Arqueta Alumbrado sin fondo | 320 x 320 x 500 | 420 x 420 x 500 | 53,00 | 12 | 1.000 x 1.000 x 1.550 |
Hoja Arqueta | 400 x 400 | 480 x 480 x 50 | 26,00 | – | – |
Hoja Arqueta URBAMUSA | 400 x 400 | 450 x 450 x 80 | 38,00 | – | – |
Tapa TP01 | 505 x 505 x 50 | 520 x 520 x 60 | 50,00 | 7 | – |
Arqueta Alumbrado sin fondo | 400 x 400 x 520 | 480 x 480 x 500 | 85,00 | 8 | 1.000 x 1.000 x 1.120 |
Arqueta URBAMUSA | 460 x 460 x 500 | 560 x 560 x 500 | 175,00 | – | – |
Arqueta con fondo | 400 x 400 x 540 | 560 x 560 x 600 | 237,00 | – | – |
Arqueta con fondo | 400 x 400 x 580 | 480 x 480 x 640 | 142,00 | 8 | – |
Arqueta sin fondo | 400 x 400 x 640 | 480 x 480 x 640 | 123,00 | 8 | – |
Arqueta ADIF Túnel | 420 x 650 x 708 | 700 x 950 x 900 | 765 | 1 | – |
Arqueta con fondo | 490 x 490 x 420 | 610 x 610 x 470 | 125,00 | 8 | – |
Arqueta sin fondo | 490 x 490 x 470 | 610 x 610 x 470 | 125,00 | 8 | – |
Hoja Arqueta | 600 x 600 | 670 x 670 x 40 | 44,00 | – | – |
Tapa TP02 | 360 x 720 x 60 | 740 x 740 x 70 | 126,00 | 5 | – |
Arqueta ONO con fondo | 600 x 600 x 800 | 800 x 800 x 900 | 712,00 | – | – |
Arqueta ONO sin fondo | 600 x 600 x 900 | 800 x 800 x 900 | 625,00 | – | – |
Tapa TP04 | 715 x 440 x 60 | 740 x 1.370 x 70 | 250,00 | 5 | – |
Arqueta ONO con fondo | 600 x 1.200 x 800 | 800 x 1.400 x 900 | 1.112,00 | – | – |
Arqueta ONO sin fondo | 600 x 1.200 x 900 | 800 x 1.400 x 900 | 786,00 | – | – |
Tapa Telefónica Tipo H | 455 x 827 x 60 | 939 x 848 x 70 | 172,76 | 5 | – |
Tapa TP03 | 455,0 X 827,0 X 60 | 939,0 X 848,0 X 70 | 152,00 | – | – |
Arqueta Telefónica Tipo H | 700 x 800 x 805 | 870 x 970 x 905 | 709,00 | – | – |
Hoja Arqueta | 800 x 800 | 870 x 870 x 40 | 74,00 | – | – |
Arqueta con fondo | 800 x 800 x 1.000 | 960 x 960 x 1.080 | 890,00 | – | – |
Arqueta sin fondo | 800 x 800 x 1.100 | 960 x 960 x 1.080 | 890,00 | – | – |
Tapa Telefónica Tipo DM | 303 x 1.033 x 70 | 635 x 1.062 x 80 | 159,74 | 4 | – |
Arqueta Telefónica Tipo DM | 475 x 900 x 1.000 | 675 x 1.100 x 1.100 | 912,00 | – | – |
Tapa Telefónica Tipo D | 303 x 1.033 x 70 | 1.062 x 1.250 x 80 | 296,58 | 3 | – |
Arqueta Telefónica Tipo D | 900 x 1.090 x 1.005 | 1.100 x 1.290 x 1.080 | 1.395,00 | – | – |
Arqueta con fondo | 1.000 x 1.000 x 1.000 | 1.200 x 1.200 x 1.100 | 1.510,00 | – | – |
Arqueta sin fondo | 1.000 x 1.000 x 1.100 | 1.200 x 1.200 x 1.100 | 1.180,00 | – | – |








































































