138 viviendas – MCEA Arquitectura | Santiago y Zaraíche (Murcia)

Arquitectura eficiente para una nueva forma de habitar

En Santiago y Zaraíche (Murcia), MCEA Arquitectura firma este conjunto residencial de 138 viviendas destinadas al alquiler, concebido bajo los principios de eficiencia energética, confort y sostenibilidad urbana.

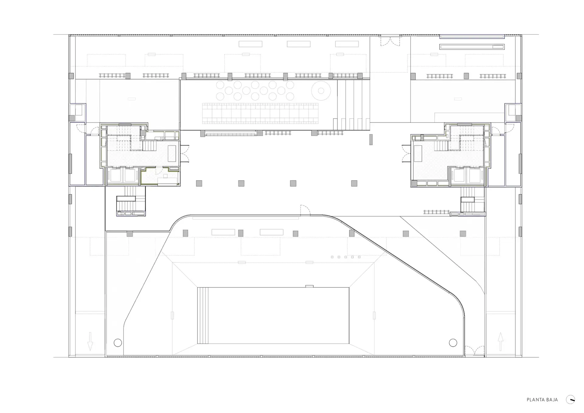
El edificio, de doce plantas más ático, se erige sobre dos parcelas centrales dentro de un conjunto lineal de cuatro, lo que da lugar a una configuración longitudinal con fachadas principales orientadas al este y al oeste. Esta condición se convierte en una oportunidad para desarrollar una envolvente arquitectónica de altas prestaciones, capaz de optimizar la iluminación natural, reducir el consumo energético y proteger las viviendas del calor.

La fachada, compuesta por tres planos superpuestos, integra protecciones solares móviles, terrazas y celosías que regulan el paso de la luz y el aire, favoreciendo un comportamiento térmico pasivo y una relación visual equilibrada entre interior y exterior. Todo el sistema se orienta a minimizar el impacto ambiental y maximizar el bienestar de los usuarios.

La organización interior alterna tipologías simétricas en plantas pares e impares, optimizando los espacios y liberando superficie para zonas comunes ajardinadas, piscina, áreas deportivas y zonas de juego, concebidas como extensión natural del hogar y como impulso a la vida comunitaria.

🌿 Pavimento exterior personalizado: diseño, durabilidad y coherencia material

En Montalbán y Rodríguez hemos participado en este proyecto desarrollando un adoquín prefabricado de hormigón personalizado, diseñado específicamente para adaptarse a las exigencias estéticas y funcionales del conjunto.

Nuestra solución combina resistencia estructural, textura antideslizante y una gama cromática neutra, en línea con la identidad arquitectónica del edificio. Este pavimento no solo garantiza la durabilidad de los espacios exteriores de uso intensivo, sino que también contribuye a la integración visual con el entorno urbano, reforzando la coherencia entre arquitectura, paisaje y materialidad.

🤝 MCEA Arquitectura | David Frutos Fotografía
📍 Santiago y Zaraíche, Murcia

Si te ha gustado el proyecto ¡Compártelo!

Proyectos relacionados